Veuillez vous connecter à votre " Accès Pro" pour pouvoir télécharger les ressources (fiche produit PDF,
…)
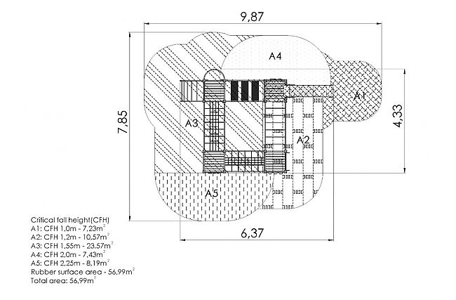
Forest - LM208-1FORP
Âge : À partir de 4 ans
Dimensions : 433 x 637 cm
Zone de sécurité : 785 x 987 cm
Hauteur totale : 285 cm
Hauteur de plancher :
120,
155
cm
Hauteur de chute libre : 225 cm
Structure Aluminium (t)
Structure bois lamellé collé
Panneau PEHD
Visserie Inoxydable
NF EN 1176-1 : Générales
NF EN 1176-3 : Toboggans
Caractéristiques générales de la gamme :
specifications_forest.pdf








